Urbanizmus je krásna veda a rozumieť by jej mal každý architekt. Jeden z mojich obľúbených učiteľov bol profesor Šteis z SVŠT a ja som bol jeho obľúbený študent.
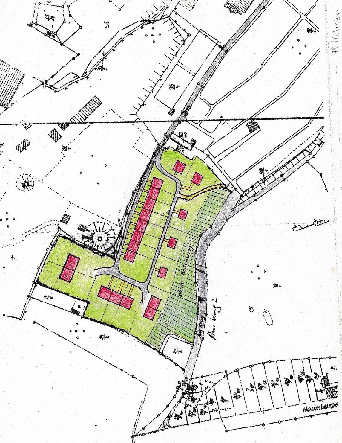
1992 Štúdia pre Halle Neustadt na Bauhaus Dessau.
1992 Štúdia pre Halle Neustadt na Bauhaus Dessau.
1992 Štúdia pre Halle Neustadt na Bauhaus Dessau.
1992 Štúdia pre Halle Neustadt na Bauhaus Dessau.
1992 Štúdia pre Halle Neustadt na Bauhaus Dessau.
1992 Štúdia pre Halle Neustadt na Bauhaus Dessau.
1992 Štúdia pre Halle Neustadt na Bauhaus Dessau.
1992 Štúdia pre Halle Neustadt na Bauhaus Dessau.
1992 Štúdia pre Halle Neustadt na Bauhaus Dessau.
1992 Štúdia pre Halle Neustadt na Bauhaus Dessau.
1992 Štúdia pre Halle Neustadt na Bauhaus Dessau.
1992 Štúdia pre Halle Neustadt na Bauhaus Dessau.
1992 Štúdia pre Halle Neustadt na Bauhaus Dessau.
1993 Školská práca. Koncepcia rozvoja Rače.
1993 Školská práca. Koncepcia rozvoja Rače.
1993 Školská práca. Koncepcia rozvoja Rače. Bratislava.
1993 Školská práca. Koncepcia rozvoja Rače. Tunel popod Malé Karpaty som umiestnil pred Krasňanmi.
1993 Školská práca. Koncepcia rozvoja Rače.
1993 Školská práca. Koncepcia rozvoja Rače. Zahusťovanie malou zástavbou.
1993 Školská práca. Koncepcia rozvoja Rače. Zjemnenie výškových rozdielov.
1993 Školská práca. Koncepcia rozvoja Rače. Most ponad koľajnice.
1993 Školská práca. Koncepcia rozvoja Rače. Jasný vplyv Hundertwassera.
1993 Školská práca. Koncepcia rozvoja Rače. Zjemnenie kontrastu.
1993 Školská práca. Koncepcia rozvoja Rače. Vizualizácia :-)
1993 Školská práca. Koncepcia rozvoja Rače. Doprava pod zemou.
1997 Developerských 34 radových domov v Lipsku.
1997 Developerských 34 radových domov v Lipsku.
1997 Developerských 34 radových domov v Lipsku.
1997 Developerských 34 radových domov v Lipsku.
1997 Developerských 34 radových domov v Lipsku.