Názov profánne stavby znie čudne, ale je to pomocný názov pre stavby všetkého druhu, od altánku až po analýzu stavby kvôli možnej kúpe. Rozhodne sa mi páči viac ako "občianska vybavenosť".
1986 Školská práca. Altánok s výklopnými doskami.
1986 Školská práca. Altánok s výklopnými doskami.
1986 Školská práca. Altánok s plechovou strechou.
1986 Školská práca. Altánok s možnosťou ohniska.
1986 Školská práca. Altánok s výklopnými doskami. Oheň horí.
1987 Školská práca. Motorest s Drive through.
1987 Školská práca. Motorest s Drive through.
1987 Školská práca. Motorest s Drive through.
1987 Školská práca. Motorest s Drive through.
1987 Školská práca. Motorest s Drive through.
1988 Školská práca. Nákupné centrum z prefabrikátov.
1988 Školská práca. Nákupné centrum z prefabrikátov.
1988 Školská práca. Nákupné centrum z prefabrikátov.
1988 Školská práca. Nákupné centrum z prefabrikátov.
1988 Školská práca. Knižnica v Petržalke.
1988 Školská práca. Knižnica v Petržalke.
1988 Školská práca. Knižnica v Petržalke.
1989 Školská práca. Galéria umenia v Bratislave.
1989 Školská práca. Galéria umenia v Bratislave. Návrh podľa Kuzmu.
1989 Školská práca. Galéria umenia v Bratislave.
1989 Školská práca. Galéria umenia v Bratislave.
1989 Školská práca. Galéria umenia v Bratislave.
1989 Školská práca. Galéria umenia v Bratislave.
1989 Školská práca. Galéria umenia v Bratislave.
1990 Školská práca. Nákupy a byty v Bratislave.
1990 Školská práca. Nákupy a byty v Bratislave.
1990 Školská práca. Nákupy a byty v Bratislave.
1990 Školská práca. Nákupy a byty v Bratislave.
1990 Školská práca. Nákupy a byty v Bratislave.
1990 Školská práca. Nákupy a byty v Bratislave.
1991 Školská práca v Bauhaus. Kancelárie JRD na hotel.
1991 Školská práca v Bauhaus. Kancelárie JRD na hotel.
1991 Školská práca v Bauhaus. Kancelárie JRD na hotel.
1991 Školská práca v Bauhaus. Kancelárie JRD na hotel.
1993 Školská práca. Nová železničná stanica v Rači.
1993 Školská práca. Nová železničná stanica v Rači.
1993 Školská práca. Nová železničná stanica v Rači.
1993 Školská práca. Nová železničná stanica v Rači.
1993 Školská práca. Nová železničná stanica v Rači.
1993 Školská práca. Nová železničná stanica v Rači.
1993 Školská práca. Nová železničná stanica v Rači.
1993 Školská práca. Hotel pri novej železničnej stanici v Rači.
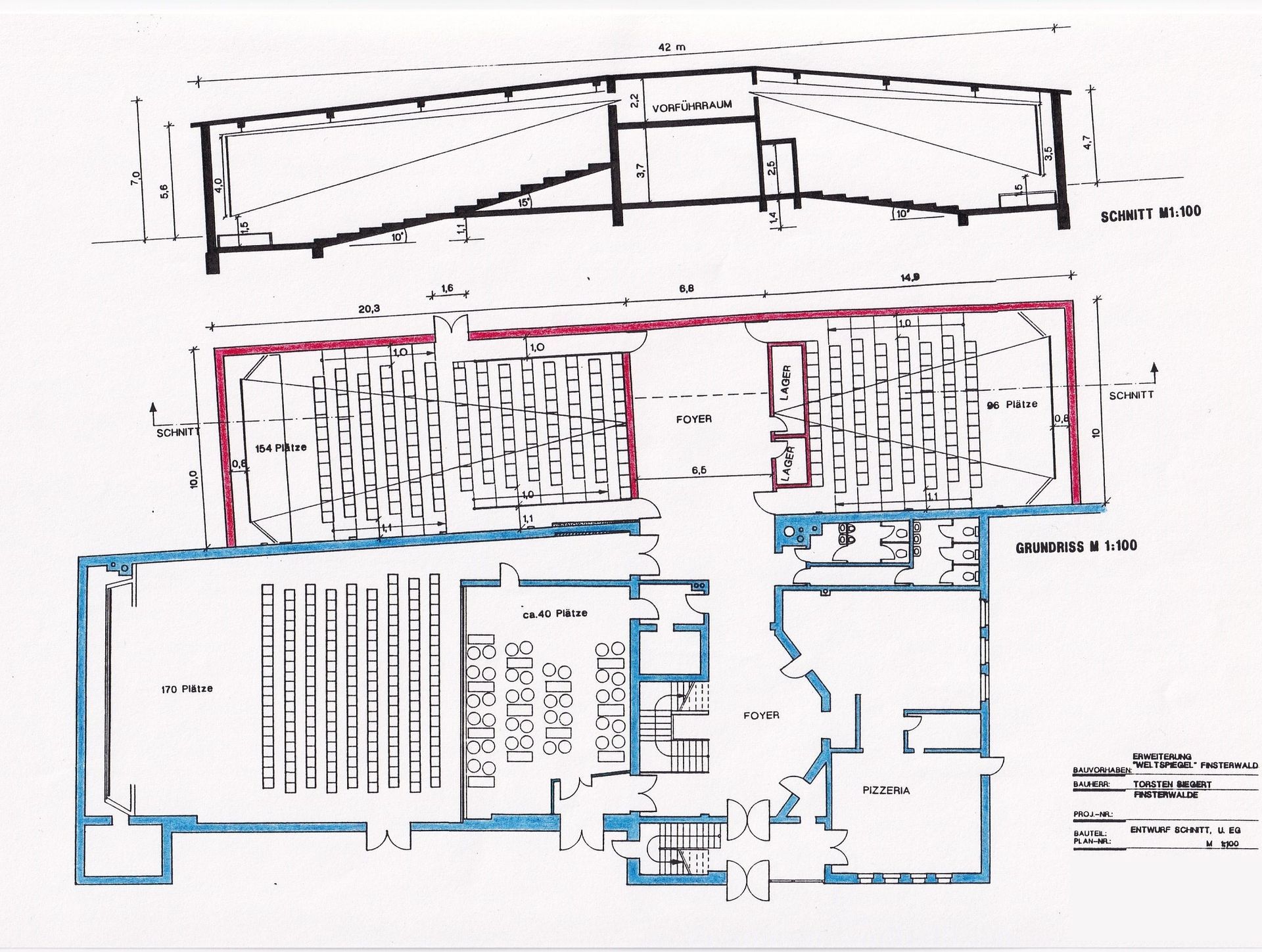
1995 Prístavba novej kinosály vo Finsterwalde.
1997 Autosalón v Lipsku. Návrh.
1997 Autosalón v Lipsku. Návrh.
1997 Autosalón v Lipsku. Skutočnosť.
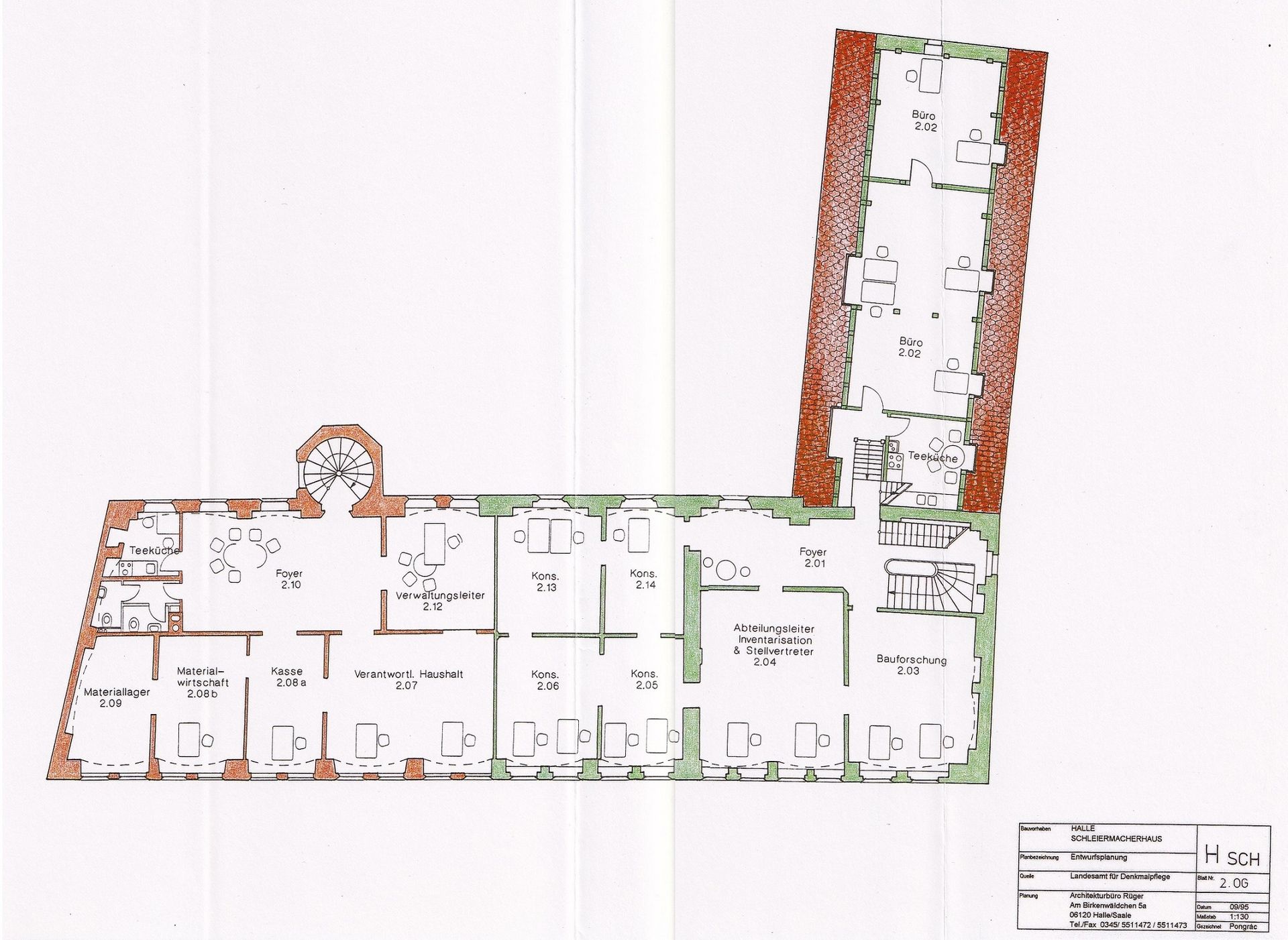
1995 Obnova pre Pamiatkový úrad v Halle.
1995 Obnova pre Pamiatkový úrad v Halle.
1995 Obnova pre Pamiatkový úrad v Halle. Pohľad z dvora.
1997 Minigolf v Riestedt.
1997 Minigolf v Riestedt.
1997 Úprava priemyselného parku v Liebertwolkwitz.
1997 Úprava priemyselného parku v Liebertwolkwitz.
1997 Úprava priemyselného parku v Liebertwolkwitz.
1998 Poliklinika v Lipsku.
1998 Poliklinika v Lipsku.
1998 Poliklinika v Lipsku.
2000 Úprava priemyselnej ruiny v Lipsku.
2000 Obnova domu v Rochlitz na hl. námestí pre Azera (Kebab). Podklad sa nezachoval.
2008. Reklamná tabuľa v Bratislave.
2008. Reklamná tabuľa v Bratislave.
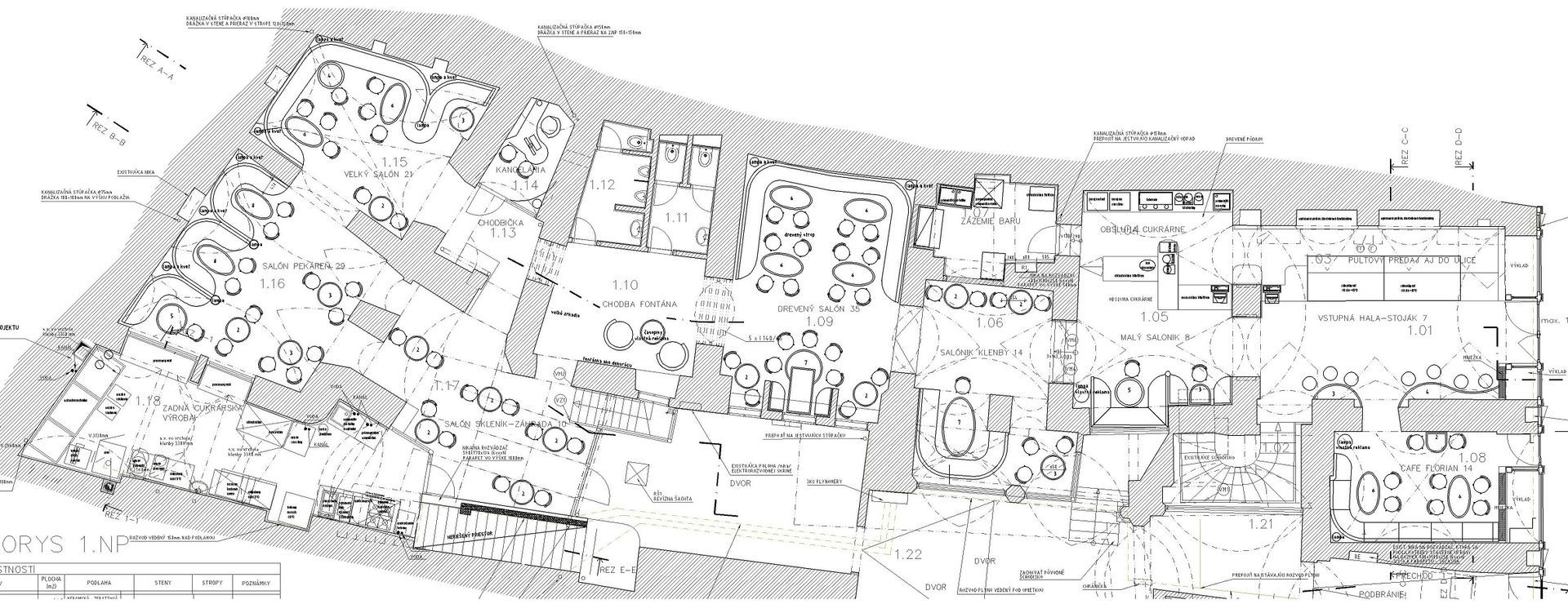
2009 Prestavba renesančného domu na cukráreň v Bratislave.
2009 Prestavba renesančného domu na cukráreň v Bratislave.
2009 Prestavba renesančného domu na cukráreň v Bratislave.
2010 Úprava neogotickej maštale na galériu umenia v Galante.
2010 Úprava neogotickej maštale na galériu umenia v Galante.
2010 Úprava neogotickej maštale na galériu umenia v Galante.
2010 Úprava neogotickej maštale na galériu umenia v Galante.
2010 Úprava neogotickej maštale na galériu umenia v Galante.
2010 Úprava neogotickej maštale na galériu umenia v Galante.
2010 Úprava neogotickej maštale na galériu umenia v Galante.