Táto kategória zahŕňa stavby ktoré slúžia spoločnému užívaniu spoločenských ľudí, teda spoločenské stavby. Je to zmiešanina obytných priestorov, spoločných priestorov, sociálnych priestorov. A priestorov ako takých.
1994 Kancelárie a byty vo Finsterwalde. Návrh.
1994 Kancelárie a byty vo Finsterwalde. Hotovo.
1994 Kancelárie a byty vo Finsterwalde. Návrh vikiera.
1997 Kancelárie a byty v Lipsku. DDR poriadok.
1997 Kancelárie a byty v Lipsku. Návrh.
1997 Kancelárie a byty v Lipsku. Hotovo.
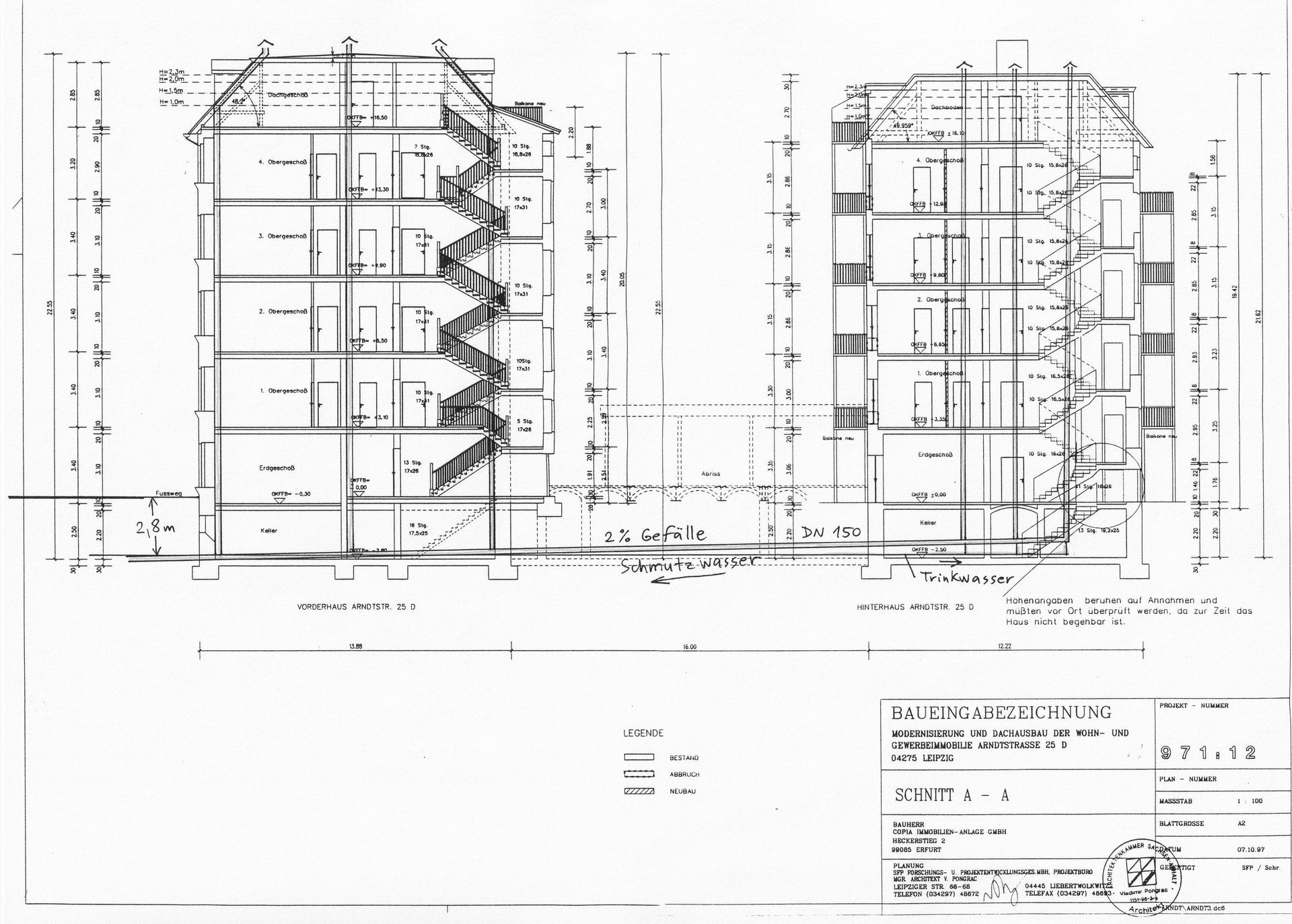
1997 Kancelárie a byty v Lipsku.
1997 Kancelárie a byty v Lipsku.
1997 Kancelárie a byty v Lipsku. Hotovo.
1997 Kancelárie a byty v Lipsku.
1997 Kancelárie a byty v Lipsku. Hotovo.
2002 Centrum pre deti. Prestavba bývalej ZDŠ v Beiersdorf. Hotovo.
2002 Centrum pre deti. Prestavba bývalej ZDŠ v Beiersdorf. Návrh.
2002 Centrum pre deti v Beiersdorf. Aspoň trochu dreva.
2002 Centrum pre deti. Prestavba bývalej ZDŠ v Beiersdorf. Pôdorys.
2002 Centrum pre deti. Prestavba v Beiersdorf. Drevená deka musela ustúpiť.
2002 Centrum pre deti. Prestavba bývalej ZDŠ v Beiersdorf.
2002 Centrum pre deti. Prestavba bývalej ZDŠ v Beiersdorf. Hotovo.
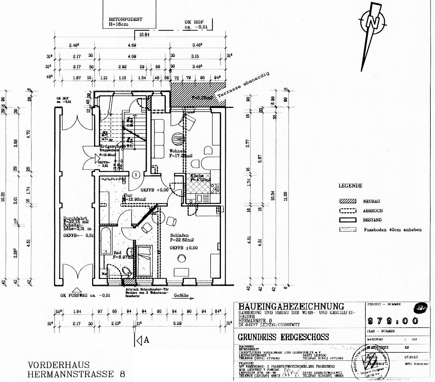
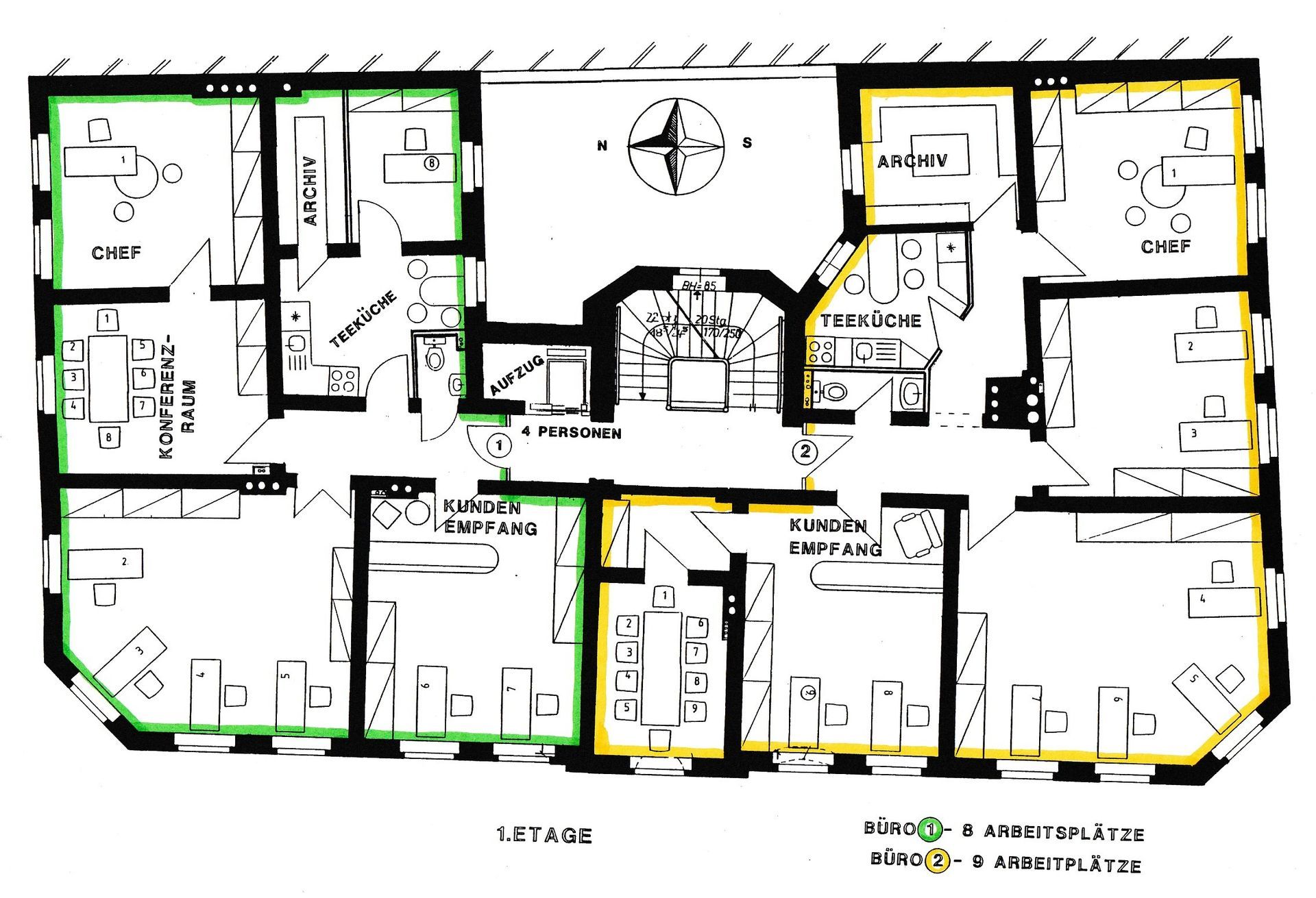
2002 Kancelárie a byty v Lipsku.
2003 Prestavba bývalého sanatória na sociálnu prácu v Grimma. Tabuľa.
2003 Prestavba bývalého sanatória na sociálnu prácu v Grimma.
2003 Prestavba bývalého sanatória na sociálnu prácu v Grimma.
2003 Prestavba bývalého sanatória na sociálnu prácu v Grimma. Plán výstavby.
2003 Prestavba bývalého sanatória na sociálnu prácu v Grimma.
2003 Prestavba bývalého sanatória na sociálnu prácu v Grimma.
2003 Prestavba bývalého sanatória na sociálnu prácu v Grimma. Nová cesta pre hasičov.
2003 Prestavba bývalého sanatória na sociálnu prácu v Grimma. Gabiony.
2003 Prestavba sanatória na sociálnu prácu. Plán jazierka pre hasičov.
2003 Prestavba bývalého sanatória na sociálnu prácu v Grimma. Zber vody pre jazierko.
2003 Prestavba bývalého sanatória na sociálnu prácu v Grimma. Zber vody funguje.
2003 Prestavba bývalého sanatória na sociálnu prácu v Grimma. Výpusť jazierka (aj popod dom!).
2003 Prestavba bývalého sanatória na sociálnu prácu v Grimma. Výpusť jazierka.
2003 Prestavba bývalého sanatória na sociálnu prácu v Grimma. Fólia mi pripomenula Christov Reichstag.
2003 Prestavba bývalého sanatória na sociálnu prácu v Grimma. Hotovo.
2005 Prestavba vily na sanatórium v Lipsku - Eutritzsch.